Dettagli articolo
Informazioni
Specifiche
- Dimensionsbereich: DN25 – 65- Anzahl Personen: 4 - 2500 - Mit Leckageschutz erhältlich (kleine Geräte)
Application
- Hauswassereingang- Einfamilienhäuser, Mehrfamilienhäuser, öffentliche Gebäude und Industrieanlagen
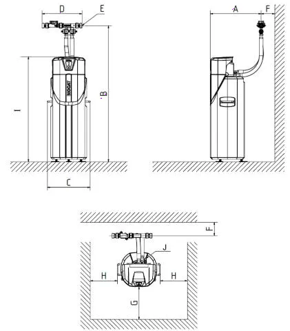
Disegni del prodotto
Label drawings
Altri
Z-drawing
.jpg?sitename=Global&ext=.jpg&height=440)
.jpg?sitename=Global&ext=.jpg&height=158)