Riempire il carrello BIM dal catalogo prodotti

GF BIOCAT limescale protection device KS 6500-C

- Numero massimo di persone: 27
- Consumo massimo giornaliero: 2640 l/giorno
- Dimensione di collegamento: DN40 (1 1/2" IG)

GF BIOCAT limescale protection device KS 6500-C

Dettagli articolo

GF BIOCAT limescale protection device KS 6500-C

Informazioni

Specifiche

- Dimensionsbereich: DN25 – 65
- Anzahl Personen: 4 - 2500
- Mit Leckageschutz erhältlich (kleine Geräte)

Application

- Hauswassereingang
- Einfamilienhäuser, Mehrfamilienhäuser, öffentliche Gebäude und Industrieanlagen

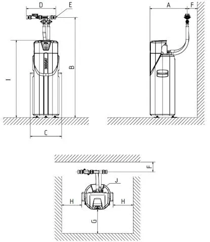
Disegni del prodotto

1163283_LAB
1163283
11 B
1163283_PHO
1163283_PHO
13 B
1163283_ZMD
1163283
24 B