Dettagli articolo
Informazioni
Specifiche
· Das INSTAFLEX-System wird kontinuierlich von internen und externen Stellen geprüft· Diese Inspektionen umfassen die Qualitätssicherung während der Fertigung sowie ISO-Zertifizierungen für Umwelt- und Prozesssicherheit· INSTAFLEX erfüllt alle wesentlichen Anforderungen für den Einsatz in der Gebäudetechnik und wird von den Zulassungsstellen für Trinkwasser-, Heizungs- und Druckluftanlagen an Land und auf See überwacht
Application
- Anwendungsbereich Kalt- und Warmwasser, Druckluft, Kühlsysteme- Installation Aufputz- und Unterputzleitungen
Disegni del prodotto
Label drawings
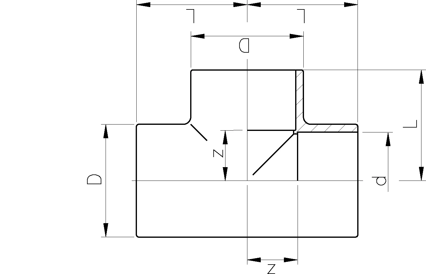
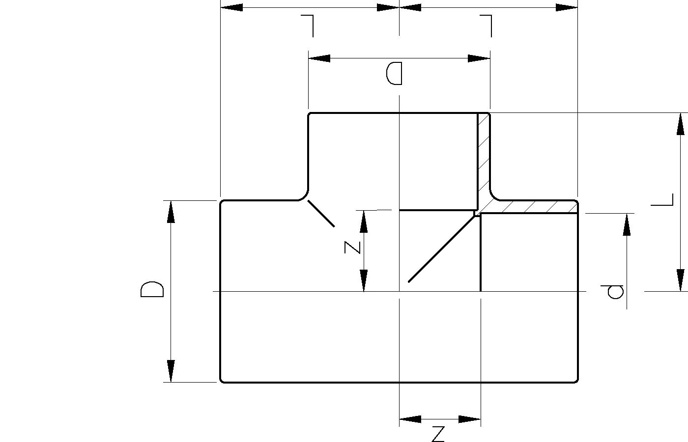
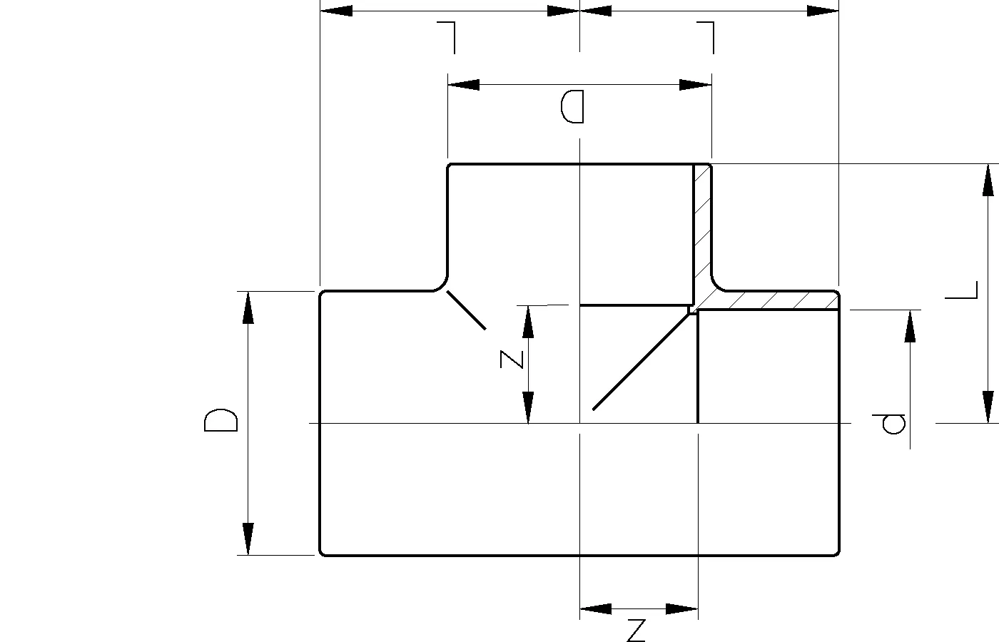
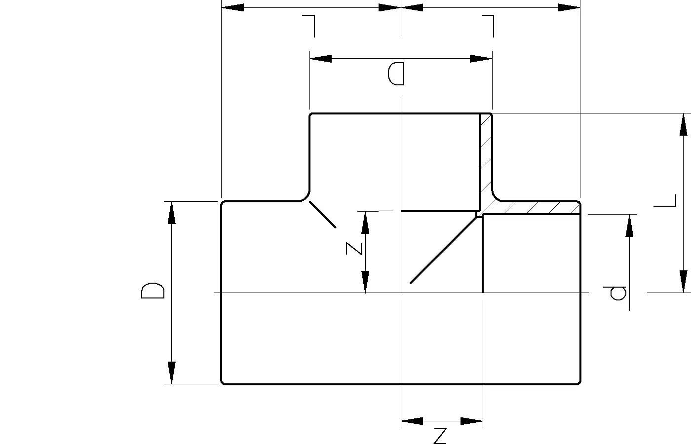
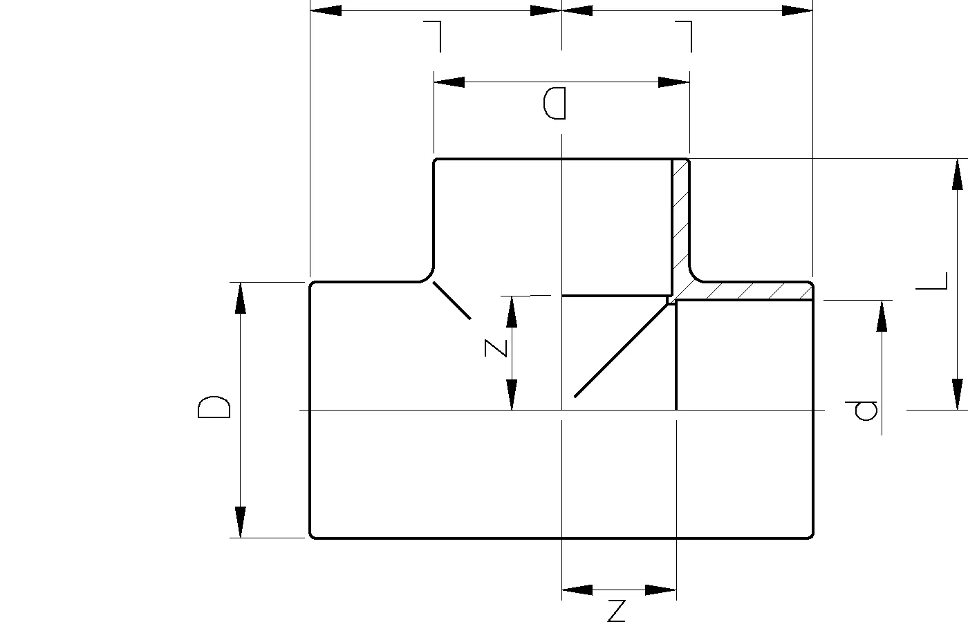
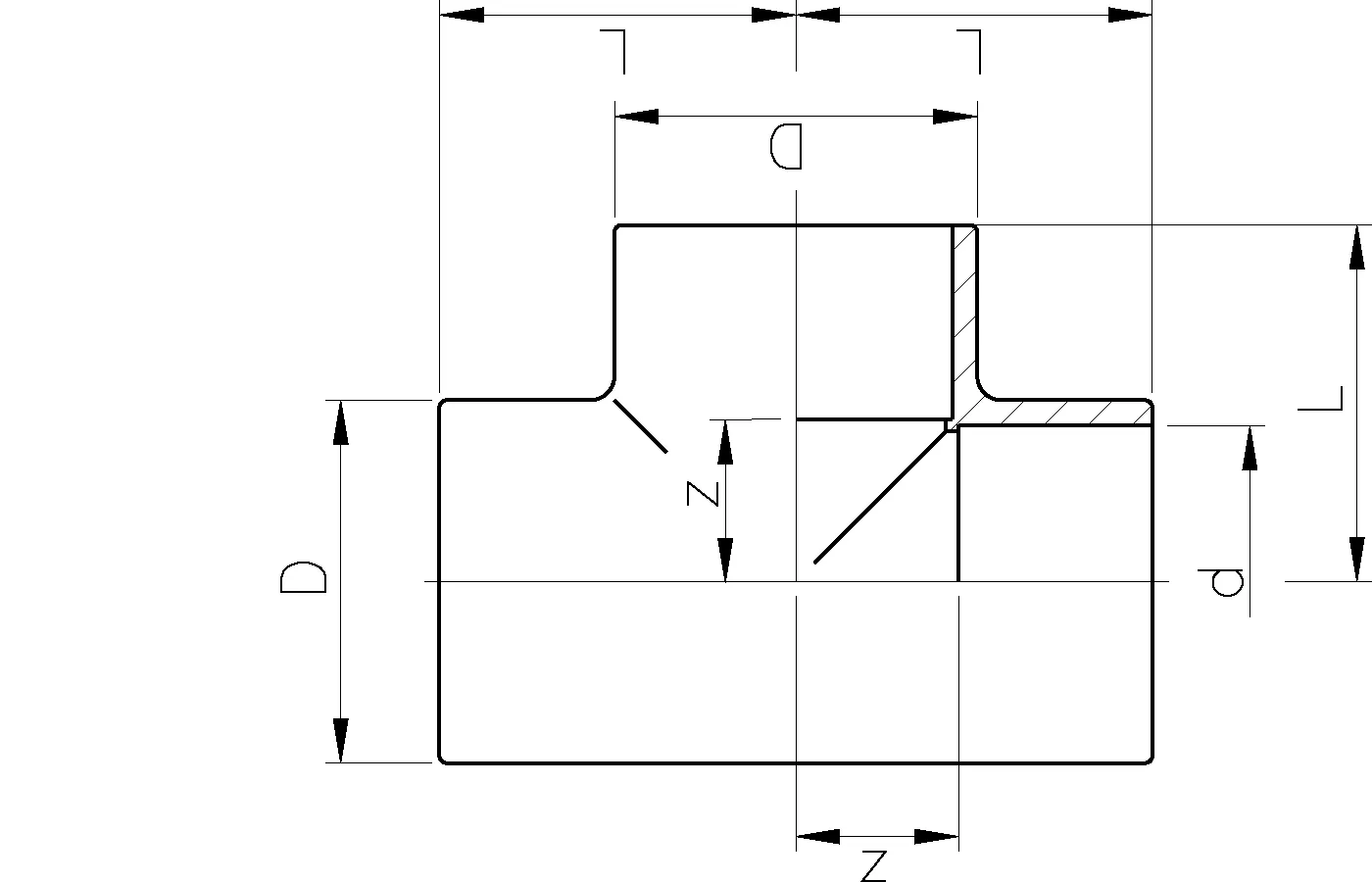
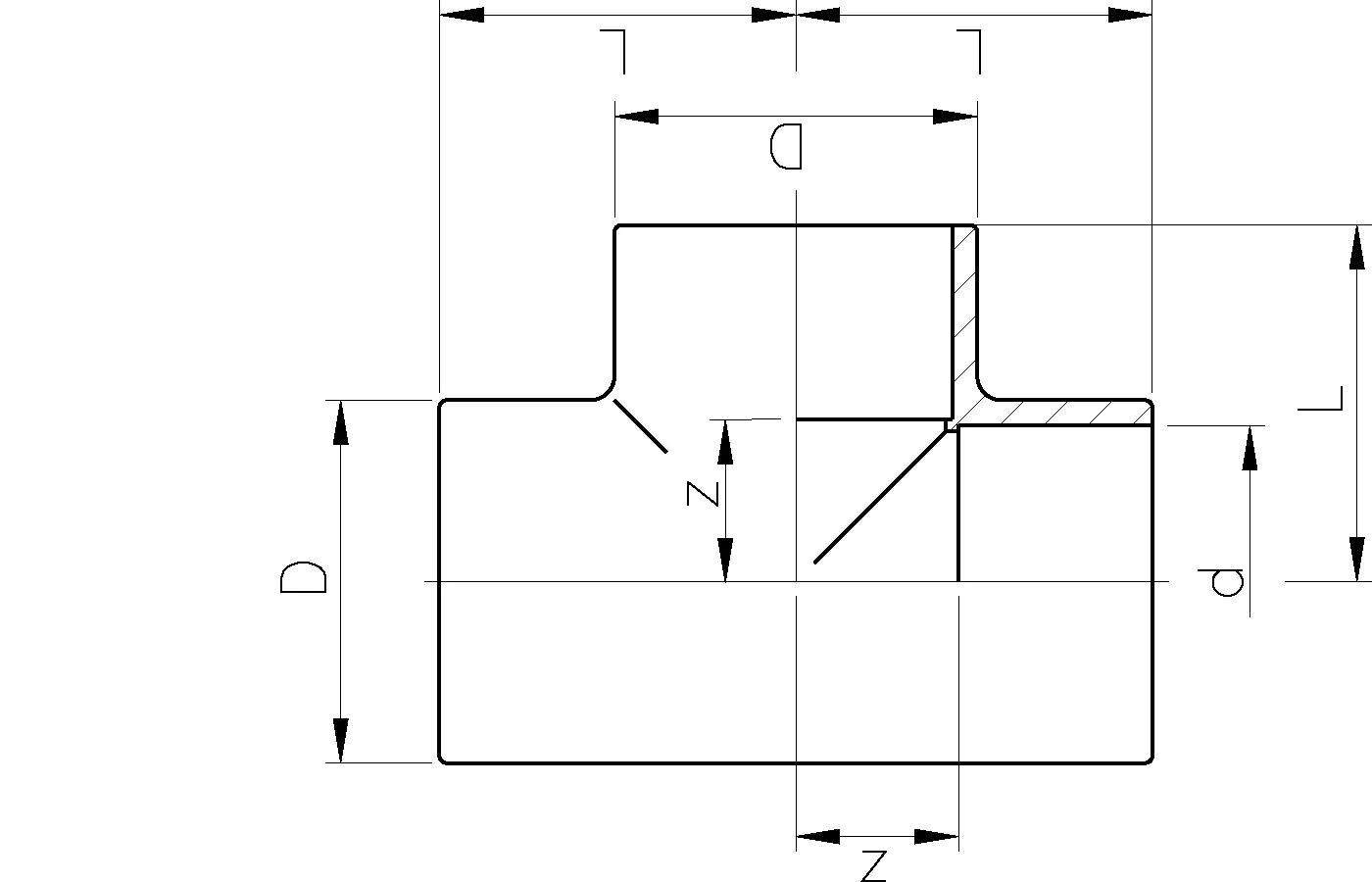
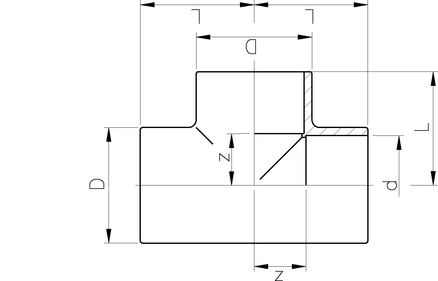
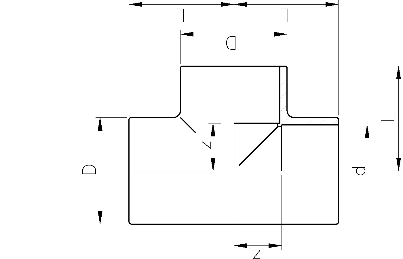
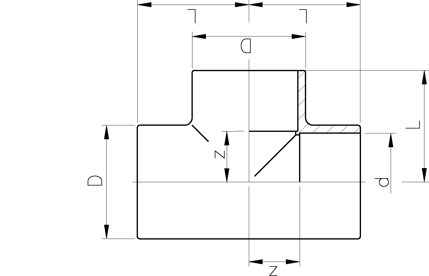
Z-drawing
Altri
.jpg?sitename=Global&ext=.jpg&height=440)
.jpg?sitename=Global&ext=.jpg&height=158)