Füllen Sie den BIM Warenkorb aus dem Produktkatalog

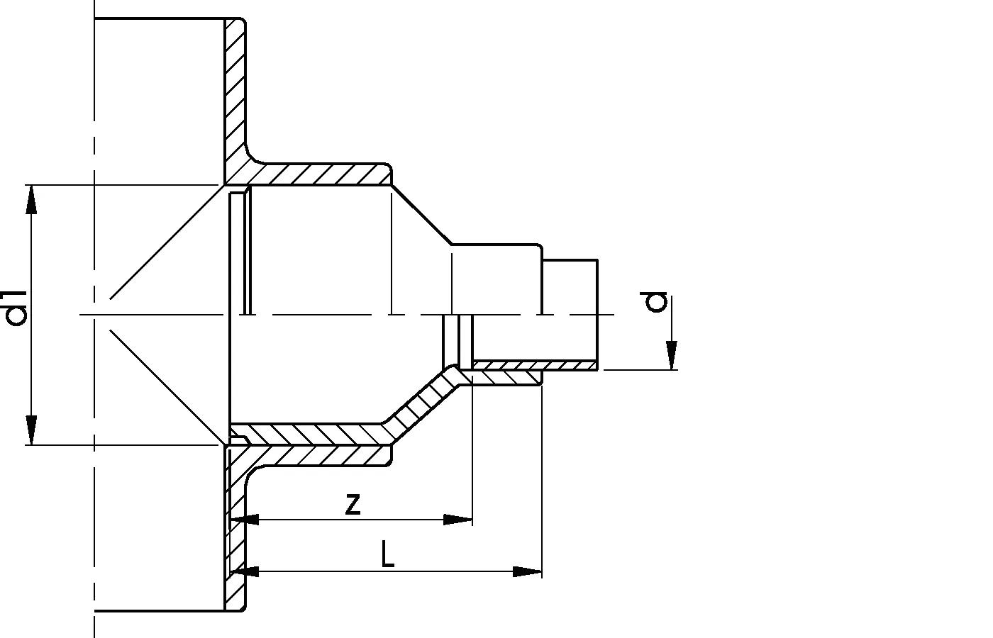
GF Instaflex Reduzierbuchse Socket Fusion d20-16

GF Instaflex Reduzierbuchse Socket Fusion d20-16
Teil Nr.1152122

Details

Dimension

Gewicht der Artikeleinheit0,005
Länge der Artikeleinheit30
Breite der Artikeleinheit20
Item_UOMSt.
Höhe der Artikeleinheit20

Measurements

Z15
Inner_diameter_di20
LÄNGE_L30

Packaging

Verpackungsmenge PL110
Verpackungslänge PL1150
Verpackungsbreite PL1100
Verpackungshöhe PL110
Verpackungsgewicht PL10,055
Verpackung GTIN PL106414900064842
Verpackungstyp PL1Plastic_Bag
Verpackungsvolumen PL10,00015

Product code

Item no GTIN07611205818999
Item no RSK1874743
Item no EAN7611205818999
Item no GF761066670

Dokumente

Zulassungsbescheinigung
43 B1162936

GF JRG CER Instaflex SYS MECH SVGW 8703-1961 CH DE